• zurück zür Übersicht

Bauhaus - 278

In den 60-er und 70-er Jahren hauptsächlich bei Bungalows anzufinden, steht das Flachdach heute für futuristische und zeitgenössich moderne Gebäude. Häuser mit Flachdach bestechen durch ihre klaren Formen, da die Gestaltungsmöglichkeiten begrenzter sind, als bei Satteldachkonstruktionen. Allerdings ist es auch wartungsintensiver als z.B. ein Satteldach. Gerade hier muss besonders Wert gelegt werden auf eine fachmännische Abdichtung und Entwässerung.

 

 

  Kurz und Knapp

 

  • Außenmaße: 15,125 m x 14,55 m
  • Wohnfläche: ca. 278,89
  • Nettogrundfläche inkl. Keller: 506,78 qm

KONTAKT

 0 72 47 - 980 83 10

Infopaket per E-Mail anfordern

Formular wird gesendet...

Auf dem Server ist ein Fehler aufgetreten.

Formular empfangen.

Grundrissvariante

ERDGESCHOSS

OBERGESCHOSS

DACHGESCHOSS

 

 

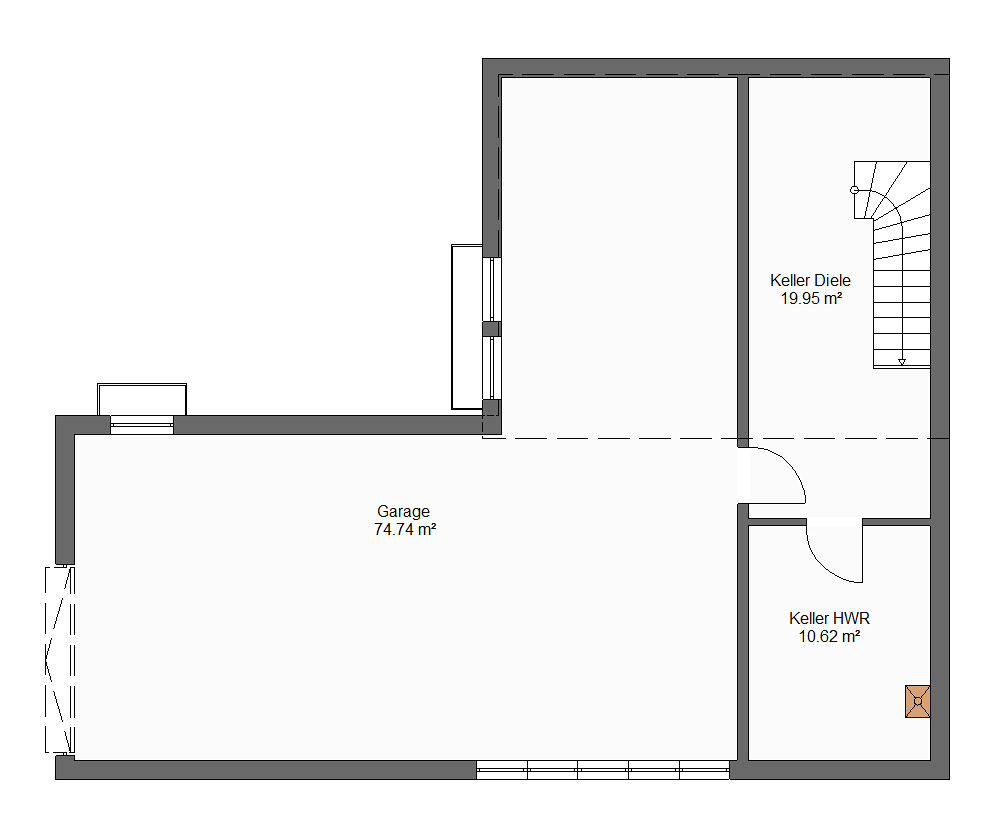
KELLERGESCHOSS

Cuffaro Wohnkonzepte GmbH

Hauptstraße 131

76351 Li.Hochstetten

 

Fon: 07247 - 98 08 310

Fax: 07247 - 98 08 319

 

post@cuffaro-wohnkonzepte.de

 

Impressum

Unsere Servicezeiten

 

Mo-Fr

08:30 Uhr - 12:00 Uhr

13:00 Uhr - 20:00 Uhr

 

Sa

09:00 Uhr - 16:00 Uhr