• zurück zür Übersicht

CLASSIC -186

Bewährt und dazu praktisch und preiswert: Der unschlagbare Vorteil von Häusern mit Satteldach ist die Fülle an unterschiedlichen Dachneigungen und Traufhöhen. Dadurch lässt sich diese Dachform auf fast jedem Grundstück realisieren. Durch die Neigung des Daches bekommt das Haus seinen ganz eigenen Charakter. Ein Studio im Dachspitz bietet Ausbaureserven für Später, wenn z.B. größere Kinder hier ihr „Eigenes Reich“ bekommen. Das spart Geld während der Bauzeit.

 

  Kurz und Knapp

 

  • Außenmaße: 11,49 m x 9,85 m
  • Wohnfläche: ca. 186,31
  • Nettogrundfläche inkl. Keller: ca. 217,12 qm

KONTAKT

 0 72 47 - 980 83 10

Infopaket per E-Mail anfordern

Formular wird gesendet...

Auf dem Server ist ein Fehler aufgetreten.

Formular empfangen.

Grundrissvariante

ERDGESCHOSS

 

DACHGESCHOSS

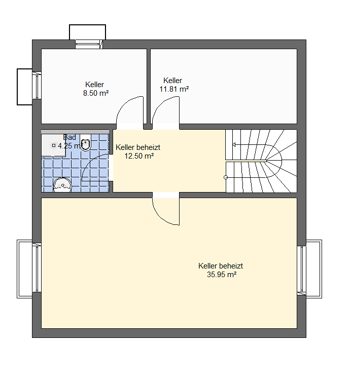
KELLERGESCHOSS

Cuffaro Wohnkonzepte GmbH

Hauptstraße 131

76351 Li.Hochstetten

 

Fon: 07247 - 98 08 310

Fax: 07247 - 98 08 319

 

post@cuffaro-wohnkonzepte.de

 

Impressum

Unsere Servicezeiten

 

Mo-Fr

08:30 Uhr - 12:00 Uhr

13:00 Uhr - 20:00 Uhr

 

Sa

09:00 Uhr - 16:00 Uhr