• zurück zür Übersicht

Stadtvilla 136

Die Stadtvilla hat sich im 19. Jahrhundert als Haus für die wohlhabende Stadtbevölkerung etabliert. Grundsätzlich können Stadtvillen in allen erdenkbaren Baustilen errichtet werden. Mittlerweile hat sich jedoch ein kubischer, mehrstöckiger Grundriss und ein flach geneigtes Zeltdach durchgesetzt.

 

 

 

 

  Kurz und Knapp

 

  • Außenmaße: 9,50 x 9,50 m
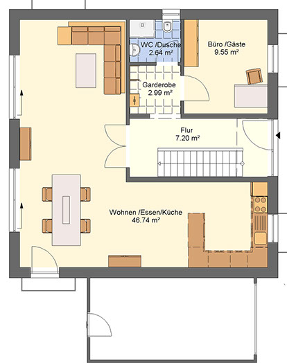
  • Wohnfläche: ca. 136,10
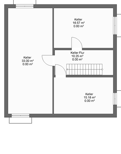
  • Nettogrundfläche inkl. Keller: ca. 215,28 qm

KONTAKT

 0 72 47 - 980 83 10

Infopaket per E-Mail anfordern

Formular wird gesendet...

Auf dem Server ist ein Fehler aufgetreten.

Formular empfangen.

Grundrissvariante

ERDGESCHOSS

DACHGESCHOSS

KELLERGESCHOSS

Cuffaro Wohnkonzepte GmbH

Hauptstraße 131

76351 Li.Hochstetten

 

Fon: 07247 - 98 08 310

Fax: 07247 - 98 08 319

 

post@cuffaro-wohnkonzepte.de

 

Impressum

Unsere Servicezeiten

 

Mo-Fr

08:30 Uhr - 12:00 Uhr

13:00 Uhr - 20:00 Uhr

 

Sa

09:00 Uhr - 16:00 Uhr